• Property Type semi-detached house
  • Bedrooms 3
  • Bathrooms 1
  • Receptions 2

Semi-detached stone built house situated in a quiet residential area in the popular village of Contin.  There are some local facilities available in Contin including a shop, filling station coffee shop and a hotel, with more facilities available in nearby Dingwall which is 7 miles away and has a full range of shops, banks and national supermarkets.  Contin is approximately 19 miles from Inverness and there is a regular bus service to Dingwall with onward bus and rail links to the city of Inverness and beyond.  Primary schooling is available in Strathpeffer, older children attend Dingwall Academy.  Transport is provided for both schools.  This area boasts beautiful forest walks, stunning lochs and scenery nearby.

Number 42 was built around 80 years ago by the Hydro Board and is surrounded by properties of a similar type.  There are pleasant gardens to the front and back and there is a large communal village green to the front. The property has benefitted from the installation of a conservatory entrance to the front of the house.  With its access to a number of safe open spaces this home would be ideal for a young family, a first time purchase or a buy to let opportunity.

Request Home Report

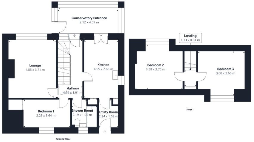
Whilst the description is believed to be correct it is issued for the guidance of interested parties only. Measurements in particulars are only approximate and floor plans are indicative only and not to scale.

From the A835 travelling west, go through the village and you will pass the filling station on the right, continue on. Just past the shop on the left take the next turn on the right into Tor View, go up the hill and take the first turn on the right and follow the road round and take the next left. Number 42 is at the top of the road with ample street parking outside.

canoe.unlocking.mavericks

EPC

Thinking of selling your house? You'll be sold on Highland Homes

We know the market, we know what works and we know how to get you the best price. Having the right team behind you will make all the difference.

Find Out More